Property Type
House, 3 Level Split
Parking
2 garage, 4 parking
MLS #
R3059205
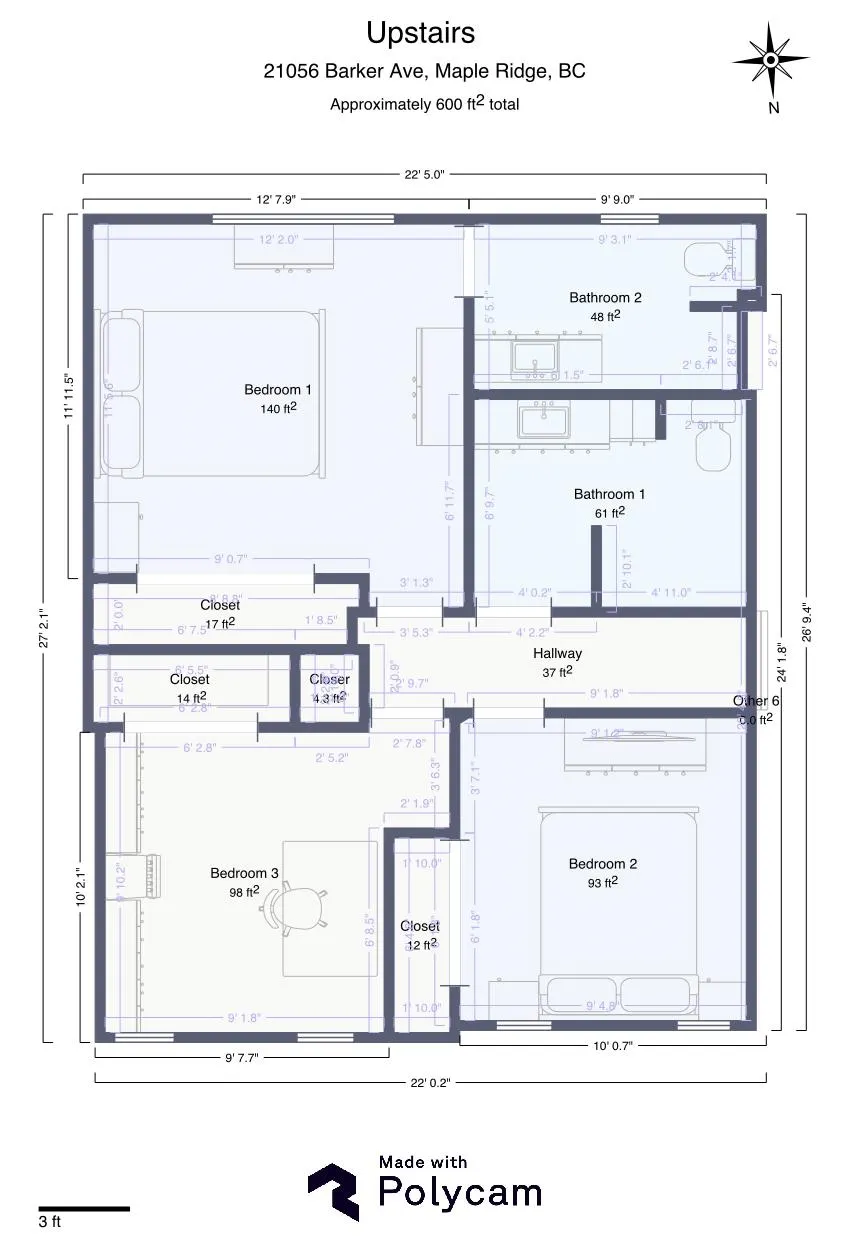
Size
1740 sqft
Basement
Crawl Space
Listed on
-
Lot size
8299.00 sqft
Tax
$6,435.68 /yr
Days on Market
-
Year Built
1982
Maintenance Fee
-
