30
$924,890 Sale
Listed 16 days ago
10268 242b Street
· 3
· 3
· 2
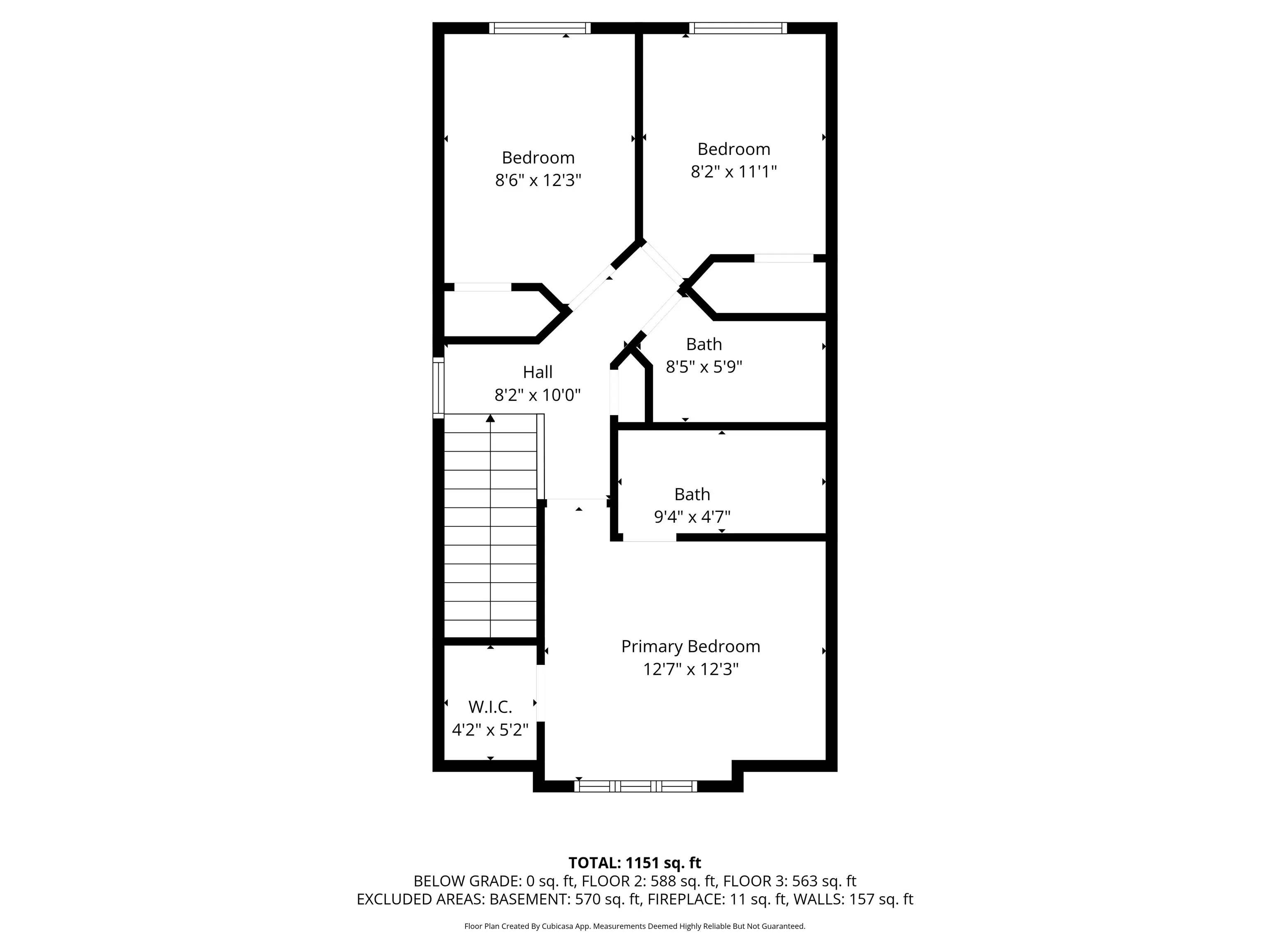
· 1210
Key Facts
Key facts for 10268 242b Street
Property Type
House
Parking
2 parking
MLS #
R3058750
Size
1210 sqft
Basement
Full
Listed on
-
Lot size
2346.00 sqft
Tax
$5,618.73 /yr
Days on Market
-
Year Built
2002
Maintenance Fee
-
Description
Enjoy a private backyard featuring a stamped concrete patio, landscaped grassy area, custom carport, and 12’x8’ storage shed. This beautifully maintained two-storey home offers a bright open-concept layout with a spacious kitchen and pantry, inviting living room with a gas fireplace, and large windo...ws that fill the space with natural light. Tenanted Property need 24 hour notice for showings.
Similar Properties (No results)
Room Types
Living Room
-
Dimensions 13'0 x 14'10
192.83 sqft
Kitchen
-
Dimensions 8'8 x 12'0
104 sqft
Dining Room
-
Dimensions 8'8 x 12'0
104 sqft
Courtesy of: Sutton Group - Supreme Realty Corporation